スタジオ概要
| 所在地 | 〒107-0062 東京都港区南青山5-15-2 3F |
|---|---|
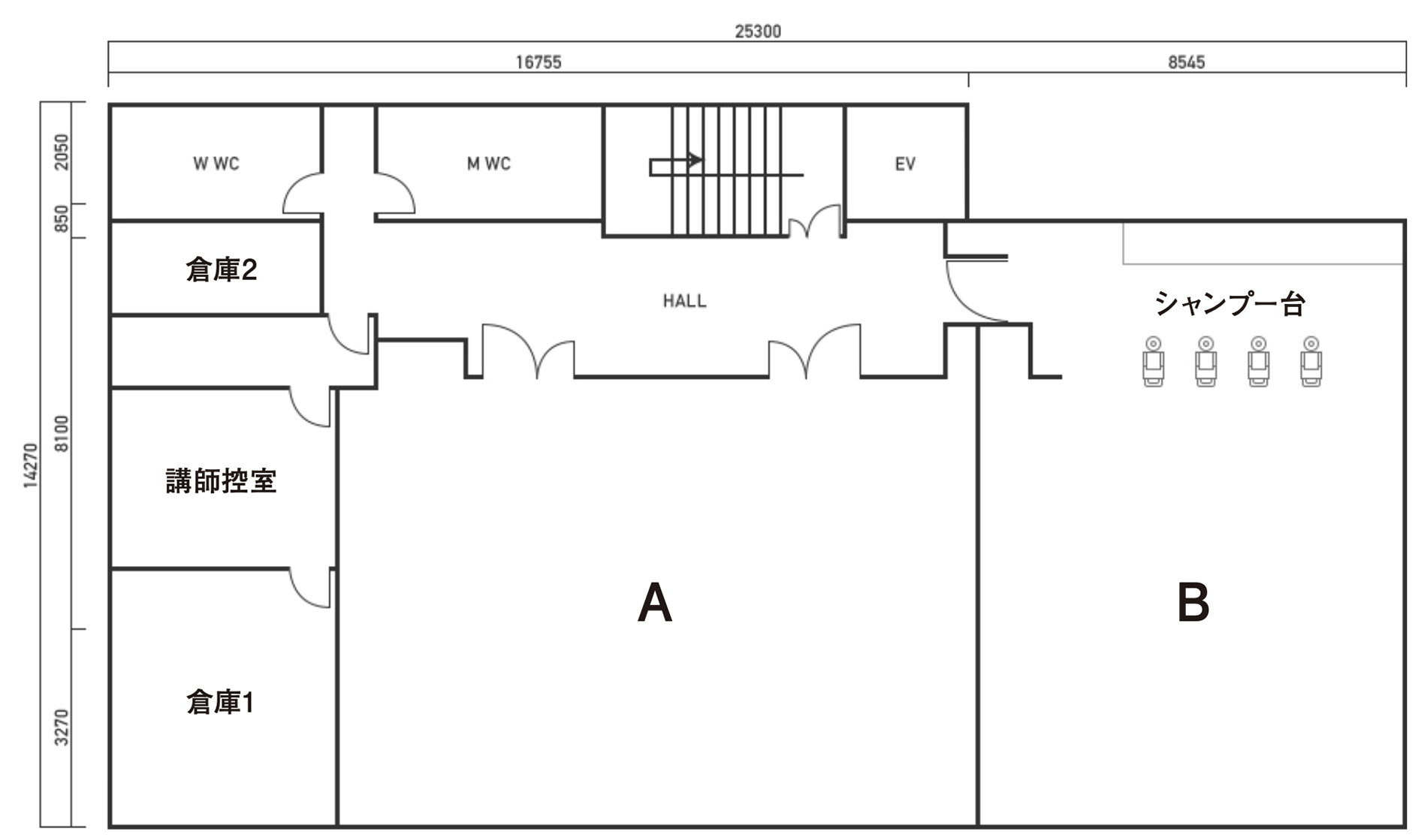
| 会場設備 | 面積:189.80㎡、天井高:275cm、最大収容人数:200人、ドライヤー同時利用:64台、テーブル:50台、イス:200脚(A+B同時利用時) 『2分割使用可』 ※フロアマップ黒線にてセパレート ▼スタジオB(図面右側) ▼ALL(3面使用) |
| 音響設備 | マイク:ハンドマイク 2台/ピンマイク 2台、ミキサー:イヤホンジャック対応 |
| 映像設備 | TVモニター75inch:2台 |


